508 Westview Avenue Richmond, VA

Portfolio of Homes


Richmond, VA 23226

508 Westview Avenue

5 Beds /  4 Baths /  2 Car Garage /  3,022 SqFt

CONTACT FOR PRICE

Contact Us Today

Nestled towards the end of a cul-de-sac road is a private boutique community called The Enclave at Westview. This high-end development will contain 7 custom homes designed and built by Richmond Hill Design + Build. Each home in this neighborhood is a unique Architectural style, making this community one of a kind with individual personalities. The community is lined with sidewalks and is in walking distance to shops, restaurants, a park and Richmond’s best schools. Click here for more info on The Enclave at Westview, including site plan, elevations, and information about this walkable, convenient community.

Located at the entrance to this upscale neighborhood is this custom Modern Country French 5 bedroom, 4 bath two-story home. Exterior details include Hardie Board siding, stone base, classic hip roof, black standing seam metal porch roof, and cedar columns with brackets, wooden hinged shutters, metal porch railings, decorative corbels and a grand 8′ Mahogany arched entry door with dual sidelights.

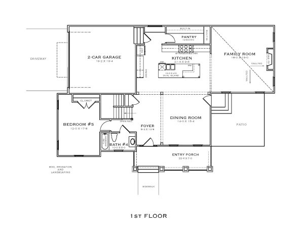
The floor plan features an oversized first floor guest suite or home office privately located away from communal spaces. The large dining room, kitchen, and family room spaces serve as the heart of the home functionally connected with a thoughtful, modern floor plan. The dining area is embellished with columns and beam ceiling details and this room offers a direct connection to outdoor living spaces. The gourmet kitchen makes a dramatic statement with its 10′ long island featuring drop down chair seating. The 48″ Chef’s gas range includes dual ovens and a signature custom wood exhaust hood. A separate beverage station includes a wine fridge, cabinet storage, and quartz countertop. Convenient to the kitchen is the large walk-in pantry lined with cabinets, quartz countertop, and a generous amount of built-in wood shelving. The family room is lined with windows flooding the room with natural light, and features a 16′ high ceiling and gas fireplace with rustic wood and stone mantel. A two-car garage with adjacent drop zone completes the first floor spaces.

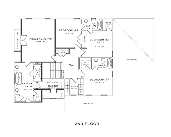
Upstairs, the primary suite offers a sizable bedroom with private balcony and dedicated grand bathroom to recharge. The Primary bath contains dual 48″vanities, a large walk-in shower with bench seating, free-standing slipper tub with floor mounted faucet, linen closet, and a generous walk-in his+hers closet. The 3 additional upstairs bedrooms each have walk-in closets with direct access to private bathrooms. A laundry room with granite folding table and natural light is centrally located off the upper hallway.

The yard is fully fenced and comes complete with sod, irrigation, and an outdoor stamped patio. The front and side yards are professionally landscaped to enhance this home’s curb appeal. The unique Architectural details of this Modern Country French home makes a luxurious statement and a unique addition to the community.